Durable, Tested, Proven
Parking Curbs For Trucks & Warehouses
American Made Trucking Curbs Produced Daily
Trucking Curbs
Heavy-Duty Concrete Truck Curbs Built, Delivered, Installed Or Picked Up
Curbo Curbs is the trusted supplier for concrete truck curbs and heavy-duty wheel stops designed for the demands of commercial trucks. We build, sell, deliver, install, and offer pickup services for contractors, trucking companies, warehouses, and municipalities across the U.S.
Buy Trucking Curbs Near Me
Available Through Dealers Nationwide
Our products are available through a growing network of dealers across the United States, making it easy to get the heavy-duty truck curbs you need, no matter where your project is located. From truck stops in the Midwest to distribution centers on the West Coast, Curbo Curbs has built a reputation for reliability and strength.
Pick Up Your Trucking Curbs
Conveniently Located on the East Coast
If you’re located in the eastern U.S., Curbo Curbs is based in Maryland, which means faster delivery times and reduced freight costs. Contractors, municipalities, and trucking companies on the East Coast benefit from the convenience of having a trusted supplier right in their region — with local pickup also available for added flexibility.
PROMT AND DEPENDABLE
Heavy-Duty Truck Curbs, Sizes & Finishes
Our truck parking curbs are specifically engineered to handle the weight and impact of semi-trucks, delivery trucks, and commercial fleets. Built with reinforced concrete, they provide long-lasting durability while protecting property, structures, and other vehicles in high-traffic environments.
These heavy-duty curbs are perfect for:
Truck stops and rest areas
Loading docks and freight yards
Commercial and industrial parking lots
Distribution centers and warehouses
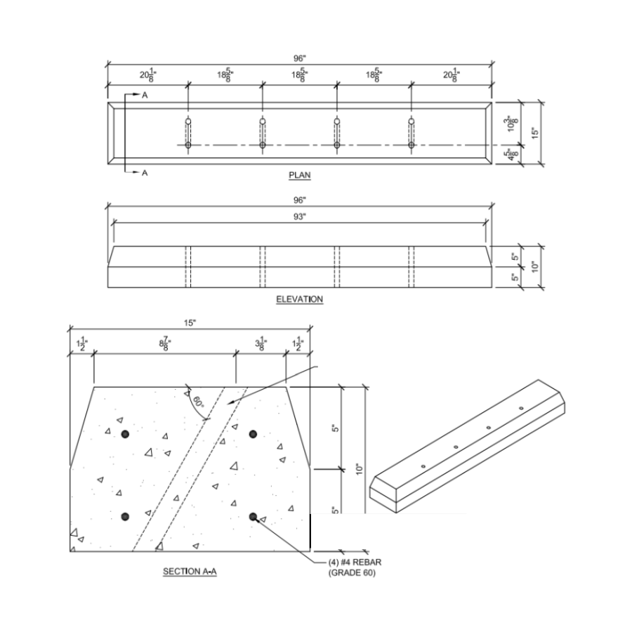
We manufacture curbs in multiple sizes and dimensions, including extra-tall reinforced options designed for heavy-duty use. Available in plain gray concrete or high-visibility yellow finishes, our curbs improve both function and safety. For unique applications, custom solutions can be designed to meet the needs of specialized industrial projects.
truck parking recommendations from curbo
Which curb should I use for truck parking? (It's our most common question)
If you would like an in person demonstration please call or text us at 443-672-8726.
We have over 50,000 Aztecs in service at warehouses all across America.
Curbo AZTEC and NAZTEC models are the most commonly used parking curbs for truck and warehouse parking lots all across America. There are pros and cons to both models.
aztec trucking curb
Pros of Aztec Trucking Curbs
How AZTEC Truck Curbs Improve Parking Lots
- Foolproof stop for heavy-use and safety-conscious warehouses
- Built heavy-duty to last at least 10 years under normal conditions
- Most popular option for conventional heavy-duty truck parking
- Trailers backing over the wheel stop is almost impossible
- Highly recommended to protect critical infrastructure
- Backed by a 10-year warranty
Cons of Aztec Trucking Curbs
Ways AZTEC Truck Curbs Can Be Challenging For Truck Parking
- Special training required for jockey truck drivers
Trailer bumpers can get ripped off if jockey trucks “jack it up” too much
High maintenance costs in yards that rely heavily on jockey trucks
Higher maintenance/replacement cost per curb
Initial cost (including freight) is nearly double compared to standard options
naztec trucking curb
Pros of Naztec Trucking Curbs
How NAZTEC Truck Curbs Improve Parking Lots
- Foolproof stop for heavy-use and safety-conscious warehouses
- Built heavy-duty to last at least 10 years under normal conditions
Jockey truck driver–friendly
Easier installation and maintenance
Half the initial installation cost compared to the Curbo AZTEC model
Most popular model for flat surface parking and jockey truck yards
Half the material and shipping cost compared to the Curbo AZTEC truck stop
Prevents trailers from rolling while parked
Backed by a 5-year warranty
Cons of Naztec Trucking Curbs
Ways NAZTEC Truck Curbs Can Be Challenging For Truck Parking
Not recommended in front of critical infrastructure or light poles
Trailers can be pushed over the wheel stop
Trucks can jump the NAZTEC curb (though the 6.5″ height prevents damage to gears and frames)
Less of a visual barrier; painting safety yellow after installation is highly recommended
Companies That trust Curbo Parking Curbs for safety & assett protection
TRUCK STOPS & PARKING CURBS
PROVEN SERVICE, SINCE
1985
40+ YEARS OF EXCELLENCE
A trusted supplier with a proven track record of reliability and customer satisfaction.
EXPERT GUIDANCE
Our knowledgeable team offers support and advice tailored to your project needs.
UNMATCHED QUALITY
Every product meets high standards for durability, reliability, and performance.
40+ YEARS OF EXCELLENCE
A trusted supplier with a proven track record of reliability and customer satisfaction.
EXPERT GUIDANCE
Our knowledgeable team offers support and advice tailored to your project needs.
UNMATCHED QUALITY
Every product meets high standards for durability, reliability, and performance.
INDUSTRY LEADING SERVICE AND QUALITY
